Render Shots
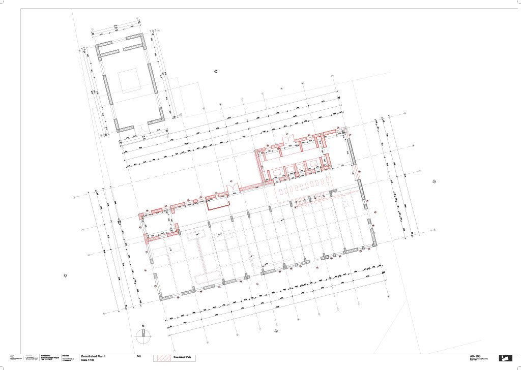
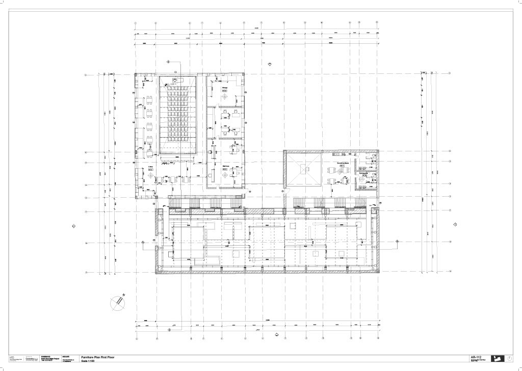
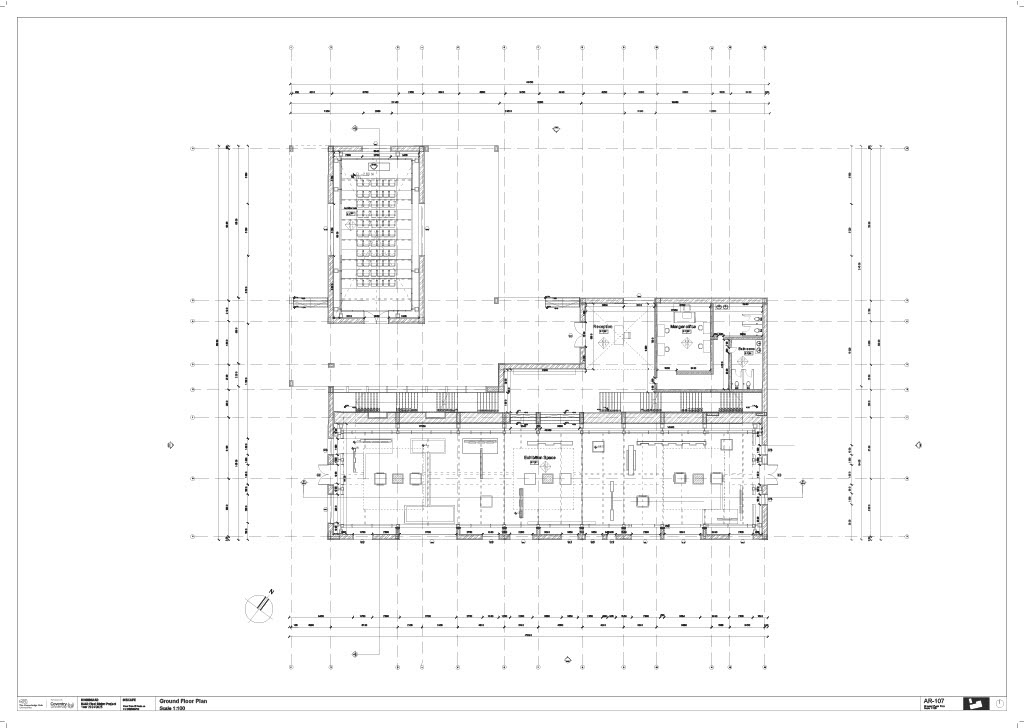
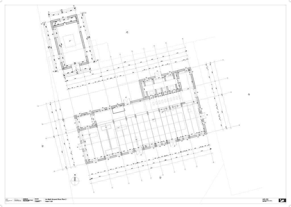
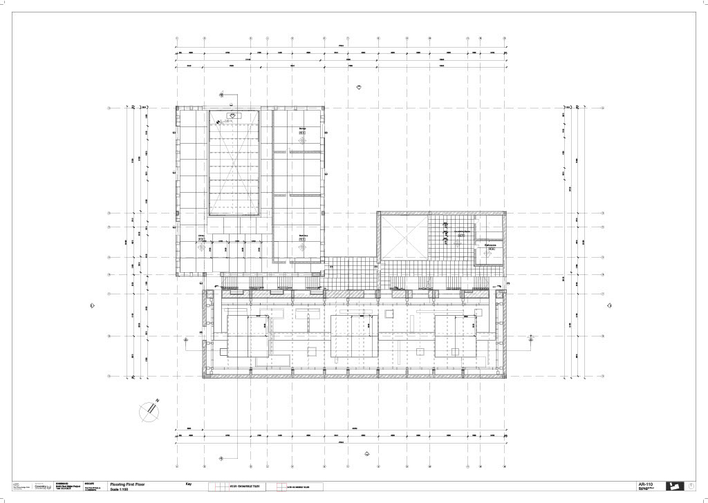
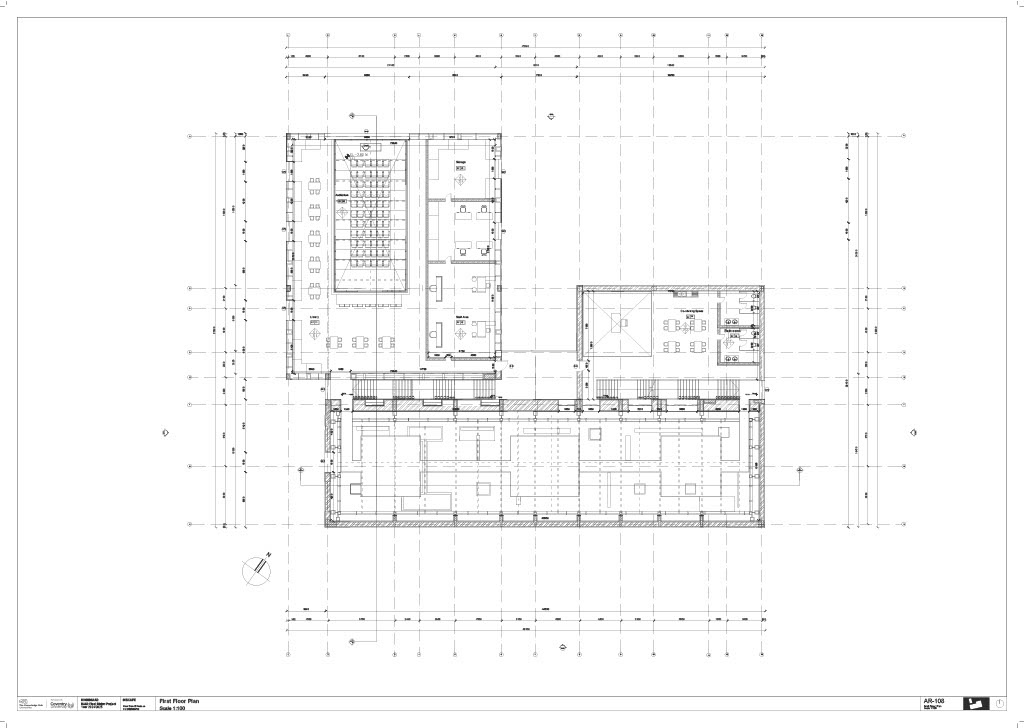
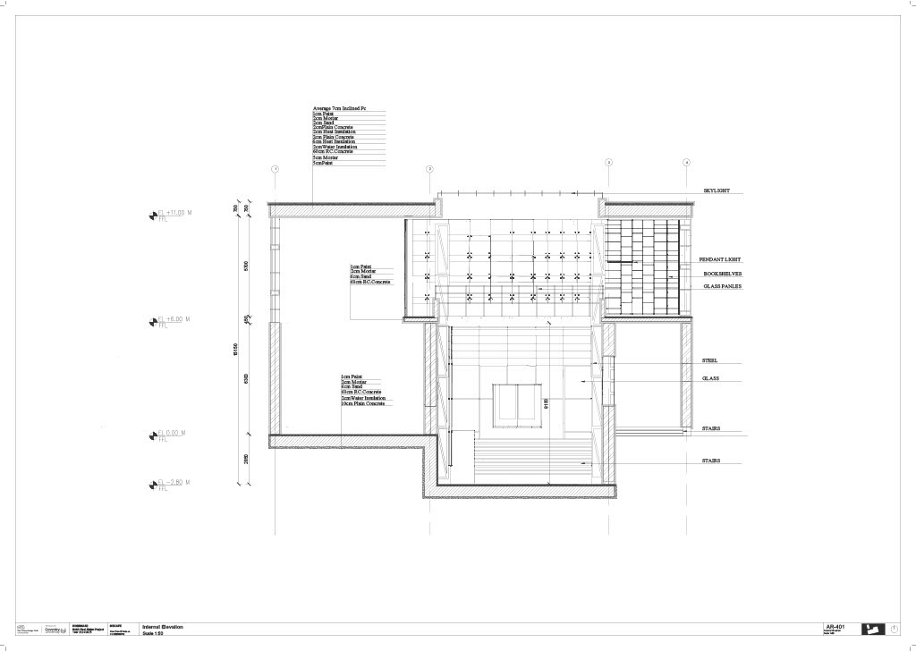
Technical 
Site And Location
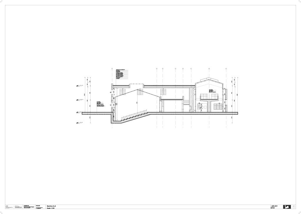
Elevations

You may also like

Back to Top